Petershagen:
Bungalow mit raffiniertem Grundriss 125 Qm mit Grundst. in Lahde vom Bungalowspezialisten PV- Anlage / FB / WP
Objekt-Nr.: Bun125SAF

Ansicht

Einrichtungsbeispiel

Einrichtungsbeispiel

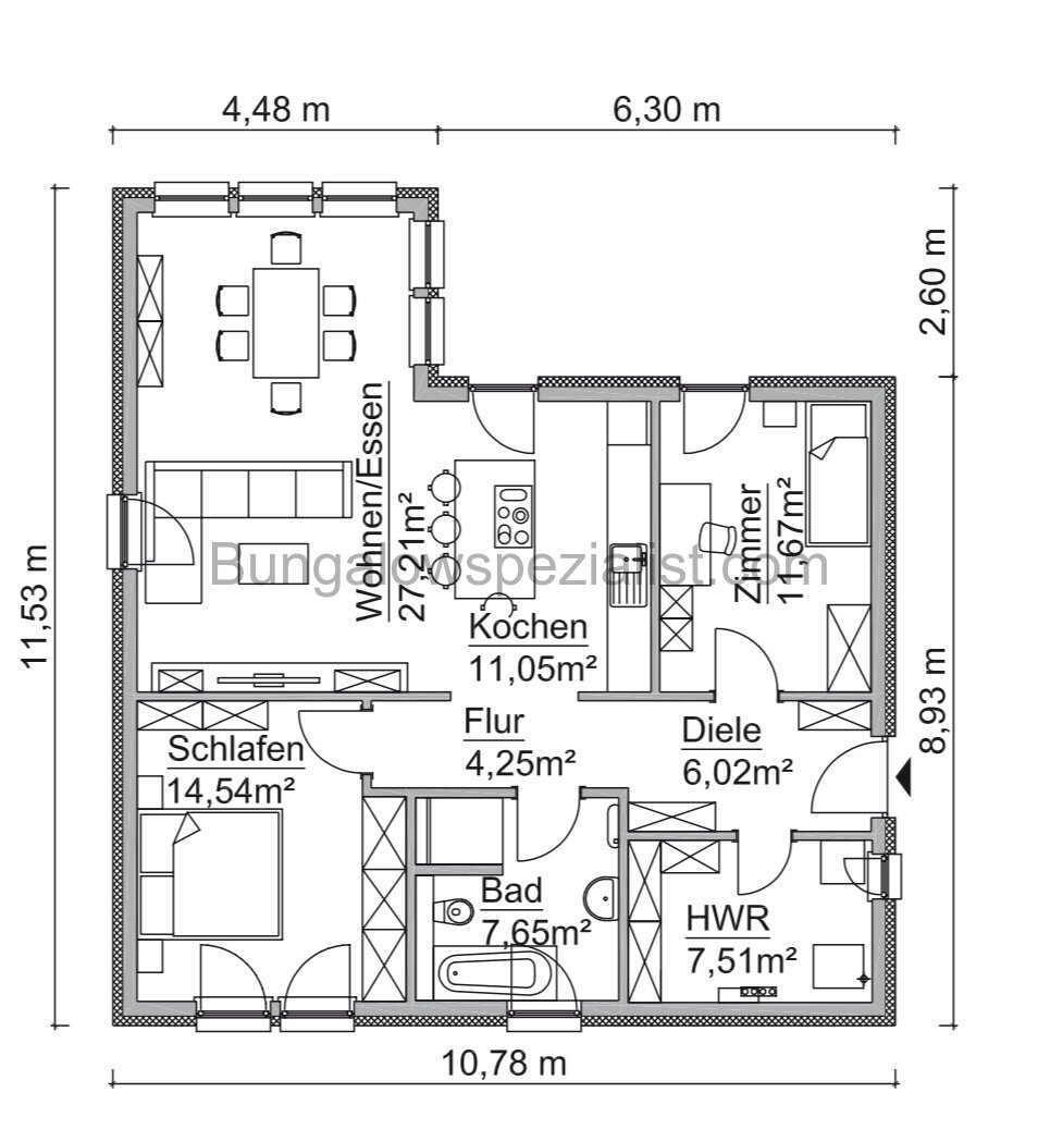
Grundriss

Einrichtungsbeispiel

Einrichtungsbeispiel

Einrichtungsbeispiel







Preis:
406.449 €
Wohnfläche ca.:
125 m²
Grundstück ca.:
559 m²
Zimmeranzahl:
3
Dieser 125 Quadratmeter große Bungalow überzeugt durch einen raffinierten Grundriss, der sich unter anderem durch die versetzte Anordnung des lichtdurchfluteten Wohn- und Essbereichs auszeichnet. Durch die bodentiefen Terrassentüren gelangt man direkt auf den Freisitz, was den Wohnbereich besonders offen und einladend macht.
Neben der Küche befindet sich ein praktischer Hauswirtschaftsraum, der auch als Speise- und Vorratskammer dient
. Der private Bereich des Bungalows umfasst ein Elternschlafzimmer mit einer angrenzenden Ankleide, von der aus man direkt in das Badezimmer gelangt, wodurch dieser Bereich besonders privat und komfortabel wird. Ein separates Duschbad sowie ein weiteres Zimmer, das flexibel als Kinderzimmer, Gästezimmer oder Home-Office genutzt werden kann.
Der Bungalow bietet die perfekte Mischung aus Komfort und Funktionalität, ist sowohl seniorengerecht als auch familienfreundlich und überzeugt mit einer hervorragenden Energiebilanz dank Photovoltaikanlage, Wärmepumpe und Fußbodenheizung.
Haustyp: Bungalow
Etagenanzahl: 1
Provisionspflichtig: nein
Nutzfläche ca.: 119 m²
Anzahl Schlafzimmer: 2
Anzahl Badezimmer: 2
Barrierefrei: ja
Seniorengerecht: ja
Gäste-WC: ja
Qualität der Ausstattung: gehoben
Bauphase: Haus in Planung (projektiert)
Zustand: Erstbezug
Für diesen Bungalow ist keine Käuferprovision fällig.
Die von uns gemachten Informationen beruhen auf Angaben des Verkäufers bzw. der Verkäuferin. Für die Richtigkeit und Vollständigkeit der Angaben kann keine Gewähr bzw. Haftung übernommen werden. Ein Zwischenverkauf und Irrtümer sind vorbehalten. Abbildungen und Fotos können aufpreispflichtige Extras enthalten.
Wir weisen auf unsere Allgemeinen Geschäftsbedingungen hin. Durch weitere Inanspruchnahme unserer Leistungen erklären Sie die Kenntnis und Ihr Einverständnis.
Das könnte Ihnen auch gefallen

Schwentker & Krause Haus uG
Herr Thomas Krause
Im Bastaugrund21
32427 Minden
Telefon: 01717372105



















