Petershagen:
Bungalow mit Einliegerwohnung in Petershagen Lahde mit Grundst. 165 Qm ( ELW 41 Qm)
Objekt-Nr.: BunELWSF

Ansicht

Einrichtungsbeispiel

Grundriss

Einrichtungsbeispiel

Einrichtungsbeispiel

Einrichtungsbeispiel

Einrichtungsbeispiel







Preis:
529.268 €
Wohnfläche ca.:
165 m²
Grundstück ca.:
595 m²
Zimmeranzahl:
3
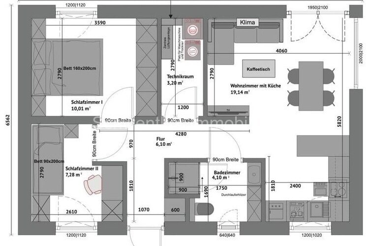
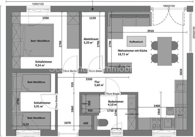
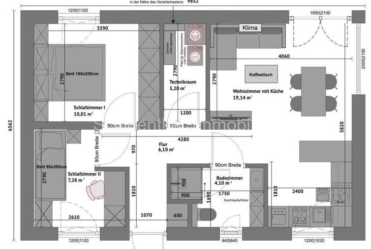
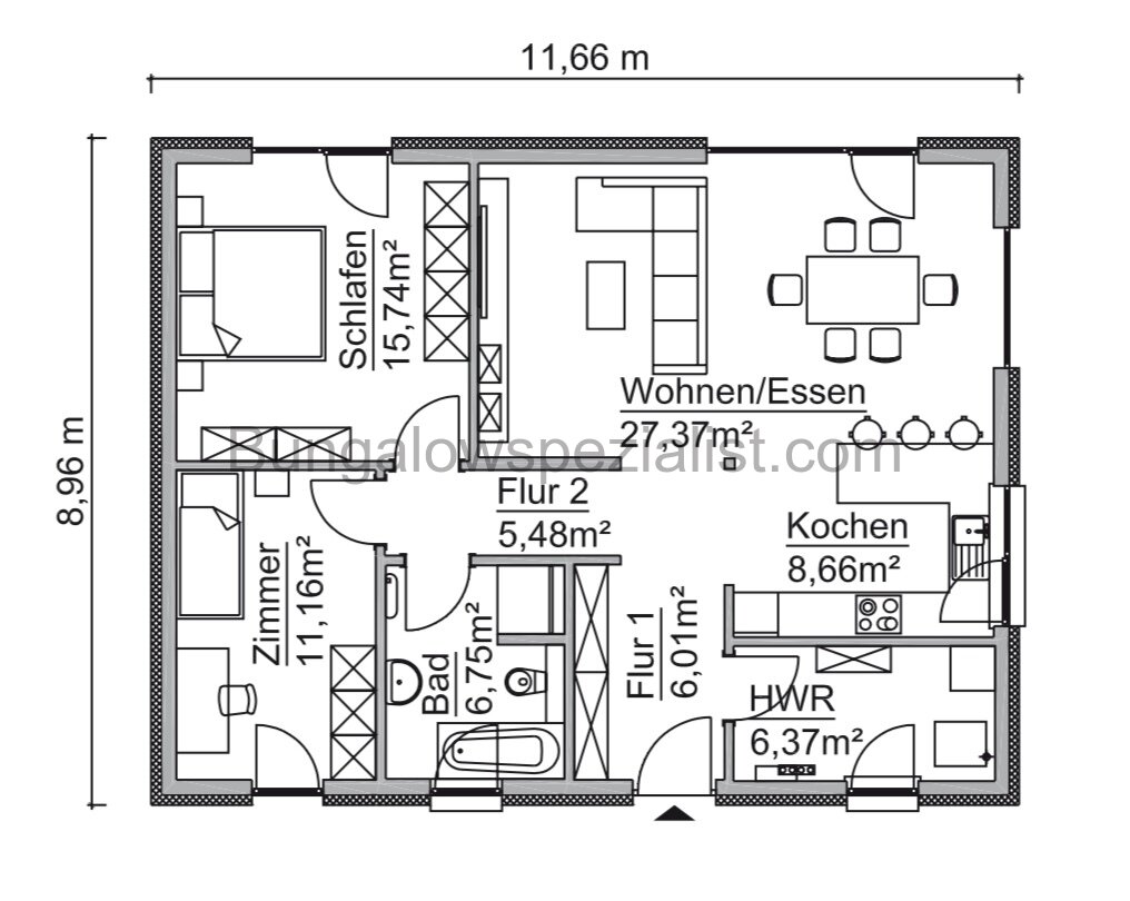
Dieser 165 Quadratmeter große Bungalow besteht aus einer Hauptwohnung mit 123 Quadratmetern und einer flexiblen Einliegerwohnung mit 41 Quadratmetern. Die Hauptwohnung umfasst ein Elternschlafzimmer mit einer großzügigen Ankleide und einem Familienbad sowie zwei Kinderzimmer.
Die Einliegerwohnung kann entweder als zusätzlicher Bereich für zwei Kinderzimmer genutzt werden oder, wenn der Bungalow altersgerecht ausgerichtet wird, als eigenständiger Bereich für Pflegepersonal, zur Vermietung an Verwandte oder für einen Elternteil, der nicht mehr allein leben kann.
Der Bungalow ist sowohl seniorengerecht als auch energieeffizient und bietet dank Photovoltaikanlage, Wärmepumpe und Fußbodenheizung höchsten Wohnkomfort.
Etagenanzahl: 1
Provisionspflichtig: nein
Nutzfläche ca.: 167 m²
Anzahl Schlafzimmer: 2
Anzahl Badezimmer: 2
Einliegerwohnung: ja
Barrierefrei: ja
Seniorengerecht: ja
Gäste-WC: ja
Bauphase: Haus in Planung (projektiert)
Zustand: Erstbezug
Für das Haus ist keine Käuferprovision fällig.
Die von uns gemachten Informationen beruhen auf Angaben des Verkäufers bzw. der Verkäuferin. Für die Richtigkeit und Vollständigkeit der Angaben kann keine Gewähr bzw. Haftung übernommen werden. Ein Zwischenverkauf und Irrtümer sind vorbehalten. Abbildungen und Fotos können aufpreispflichtige Extras enthalten.
Wir weisen auf unsere Allgemeinen Geschäftsbedingungen hin. Durch weitere Inanspruchnahme unserer Leistungen erklären Sie die Kenntnis und Ihr Einverständnis.
Das könnte Ihnen auch gefallen

Schwentker & Krause Haus uG
Herr Thomas Krause
Im Bastaugrund21
32427 Minden
Telefon: 01717372105
32469 Petershagen
Minden-Lübbecke
Nordrhein-Westfalen


























