Minden:
Bungalow (95 Qm) / 3 Zi./ monatliche Finanzierungsrate 899,--/ Seniorengerecht / PV / FB / WP / Schlüsselfertig
Objekt-Nr.: B95OG31105

Ansichr

Gestaltungsbeispiel

Einrichtungsbeispiel

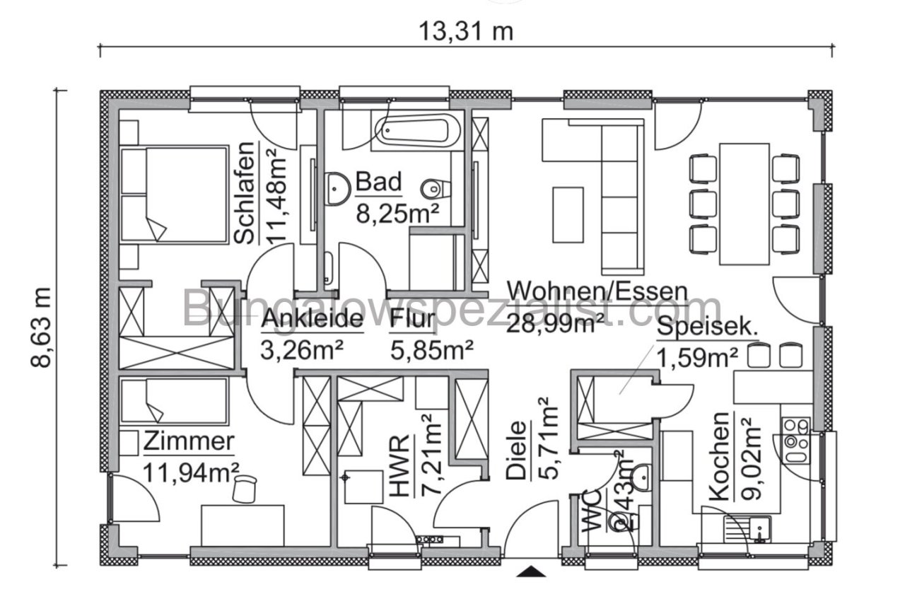
Grundriss

Einrichtungsbeispiel

Einrichtungsbeispiel






Preis:
242.686 €
Wohnfläche ca.:
95 m²
Zimmeranzahl:
3
Dieser moderne Bungalow überzeugt mit einem durchdachten, rechteckigen Grundriss und hoher Energieeffizienz. Der großzügige Wohn- und Essbereich ist mit bodentiefen Terrassentüren ausgestattet, die einen direkten Zugang zur Terrasse und damit einen fließenden Übergang in den Außenbereich ermöglichen. Die angegliederte Küche ist nicht nur offen und einladend gestaltet, sondern verfügt auch über eine direkt angrenzende Speisekammer, die ideal als Vorratsraum genutzt werden kann.
Der Bungalow bietet ein geräumiges Elternschlafzimmer mit einer angrenzenden Ankleide, die für zusätzlichen Komfort und Stauraum sorgt. Ein weiteres Zimmer kann flexibel als Home-Office, Kinderzimmer oder Gästezimmer genutzt werden und macht den Bungalow besonders vielseitig.
Zusätzlich verfügt der Bungalow über ein modernes Familienbad und einen geräumigen Hauswirtschaftsraum, der den Alltag noch komfortabler macht. Für optimale Energieeffizienz sorgt eine moderne Photovoltaikanlage, die den Energieverbrauch des Hauses nachhaltig reduziert.
Barrierefreiheit:
Dieser Bungalow ist stufenlos zugänglich und somit ideal für Senioren.
Eigene Terrasse :
Hier haben Sie die Möglichkeit, Sonne und Ruhe auf der eigenen Terrasse zu genießen
und zu entspannen.
Alternative zur Eigentumswohnung:
Sie wünschen sich eine eigene Terrasse, einen kleinen Garten, keine Nachbarn, Ruhe
und Entspannung?
Dieser Bungalow ist richtig.
Haustyp: Bungalow
Provisionspflichtig: nein
Nutzfläche ca.: 95 m²
Anzahl Schlafzimmer: 2
Anzahl Badezimmer: 1
Barrierefrei: ja
Seniorengerecht: ja
Gäste-WC: ja
Qualität der Ausstattung: gehoben
Bauphase: Haus in Planung (projektiert)
Zustand: Erstbezug
Für den Bungalow ist keine Käuferprovision fällig.
Die von uns gemachten Informationen beruhen auf Angaben des Verkäufers bzw. der Verkäuferin. Für die Richtigkeit und Vollständigkeit der Angaben kann keine Gewähr bzw. Haftung übernommen werden. Ein Zwischenverkauf und Irrtümer sind vorbehalten. Abbildungen und Fotos können aufpreispflichtige Extras enthalten.
Wir suchen für unsere Kunden im Maklerbüro ständig Einfamilienhäuser, Doppelhäuser, Bungalows und Grundstücke .
Nutzen Sie unseren kostenlosen Service für die Immobilienbewertung.
Schwentker Immobilien
Königstr. 132
32427 Minden
0171 7372105
Wir weisen auf unsere Allgemeinen Geschäftsbedingungen hin. Durch weitere Inanspruchnahme unserer Leistungen erklären Sie die Kenntnis und Ihr Einverständnis.
Das könnte Ihnen auch gefallen

Schwentker & Krause Haus uG
Herr Thomas Krause
Königstr. 132
32427 Minden
Telefon: 01717372105


















