.:
Minibungalow ( 50 Qm) vom Bungalowspezialisten aus unserer EASY- HOME- SERIE mit PV
Objekt-Nr.: Moinihaus Nr. 363

Gestaltungsbeispiel

Grundstücksfoto

Einrichtungsbeispiel

Gestaltungsbeispiel

Gestaltungsbeispiel

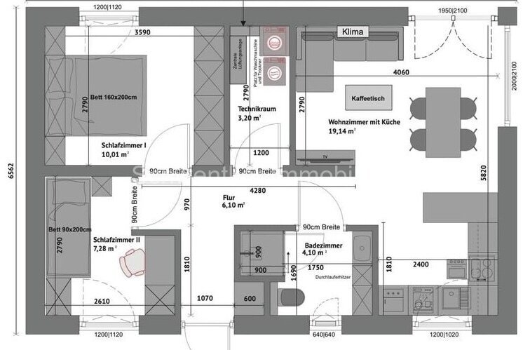
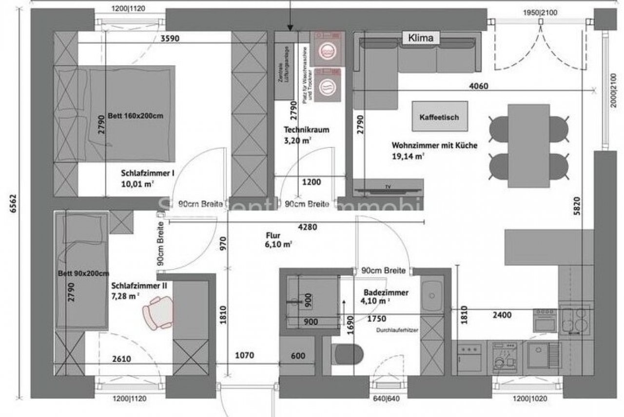
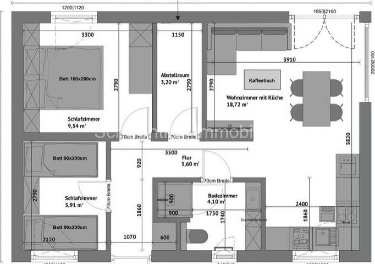
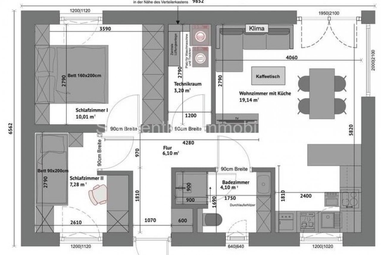
Grundriss

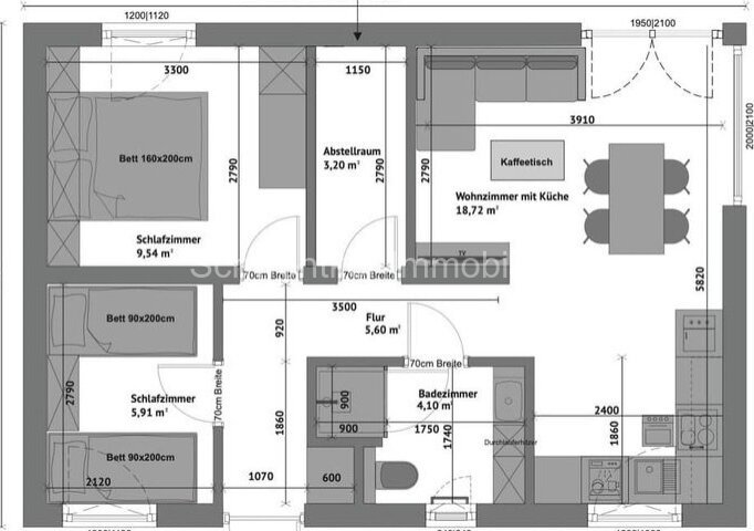
Grundriss

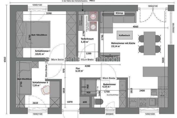
Grundriss

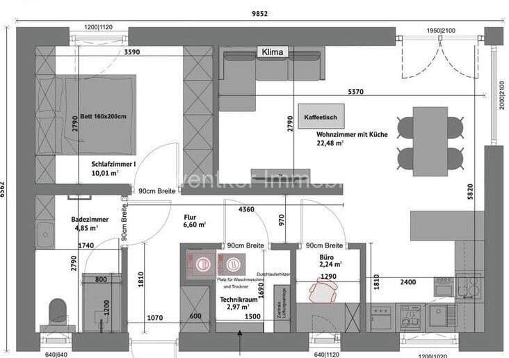
Grundriss

Einrichtungsbeispiel

Einrichtungsbeispiel

Einrichtungsbeispiel

Einrichtungsbeispiel













Preis:
139.000 €
Wohnfläche ca.:
50 m²
Zimmeranzahl:
3
Dieser Minibungalow aus unserer EASY - HOME- SERIE ist eine vielseitige und komfortable Wohnlösung, die sich für Senioren, Singles und Paare eignet.
Mit barrierefreiem Design, einer eigenen Terrasse und massiver Bauweise stellt er eine attraktive Alternative zur Eigentumswohnung dar.
Unser Rundum-sorglos-Servicepaket für Ihr Bauvorhaben
Von der ersten Idee bis zum Moment, in dem Sie Ihre neue Haustür aufschließen - wir
begleiten Sie bei jedem Schritt Ihres Bauprojekts.
Wir übernehmen die vollständige Organisation und Koordination: von der Planung über
die Baugenehmigung, Vermessung und Erschließung (Trinkwasser, Strom, Abwasser) bis
hin zu den Außenanlagen, Pflasterarbeiten, dem Carport und vielem mehr.
Kurz gesagt: Alles, was für den erfolgreichen Abschluss Ihres Bauvorhabens bis zum
Einzug notwendig ist, wird von uns zuverlässig geregelt - damit Sie entspannt bauen und
sich auf Ihr neues Zuhause freuen können.…
Dieser kompakte Bungalow bietet auf kleinem Raum durch den durchdachten Grundriss alle Annehmlichkeiten des täglichen Lebens.
Ausgestattet mit einem geräumigen Wohn / Essbereich mit integrierter Küche, einem großzügigen Schlafzimmer, Duschbad und Hauswirtschaftsraum erfüllt dieser Bungalow alle Notwendigkeiten des komfortablen Wohnens.
Barrierefreiheit:
Dieser Bungalow ist stufenlos zugänglich und somit ideal für Senioren.
Eigene Terrasse :
Hier haben Sie die Möglichkeit, Sonne und Ruhe auf der eigenen Terrasse zu genießen und zu entspannen.
Alternative zur Eigentumswohnung:
Sie wünschen sich eine eigene Terrasse, einen kleinen Garten, keine Nachbarn, Ruhe und Entspannung?
Dieser Bungalow ist richtig.
Haustyp: Bungalow
Etagenanzahl: 1
Provisionspflichtig: nein
Nutzfläche ca.: 50 m²
Anzahl Schlafzimmer: 1
Anzahl Badezimmer: 1
Barrierefrei: ja
Seniorengerecht: ja
Qualität der Ausstattung: gehoben
Baujahr: 2025
Bauphase: Haus in Planung (projektiert)
Zustand: Erstbezug
Für dieses Haus fällt keine Käuferprovision an. Falls Grundstücke von unseren Netzwerkpartnern oder Maklern mit angeboten werden, können für den Grundstückskaufpreis Maklerkosten entstehen.
Die von uns gemachten Informationen beruhen auf Angaben des Verkäufers bzw. der Verkäuferin. Für die Richtigkeit und Vollständigkeit der Angaben kann keine Gewähr bzw. Haftung übernommen werden. Ein Zwischenverkauf und Irrtümer sind vorbehalten. Abbildungen und Fotos können aufpreispflichtige Extras enthalten.
Wir weisen auf unsere Allgemeinen Geschäftsbedingungen hin. Durch weitere Inanspruchnahme unserer Leistungen erklären Sie die Kenntnis und Ihr Einverständnis.
Das könnte Ihnen auch gefallen

Schwentker & Krause Haus uG
Herr Thomas Krause
Im Bastaugrund21
32427 Minden
Telefon: 01717372105
0000 .



































