Bückeburg:
Bungalow mit Grundst. in Bückeburg großzügig barrierearm schlüsselfertig 134 Qm vom Bungalowspezialisten PV- Anlage WP / FB

Objekt-Nr.: Bun134BÜ719
Ansicht

Ansicht

Einrichtungsbeispiel

Einrichtungsbeispiel

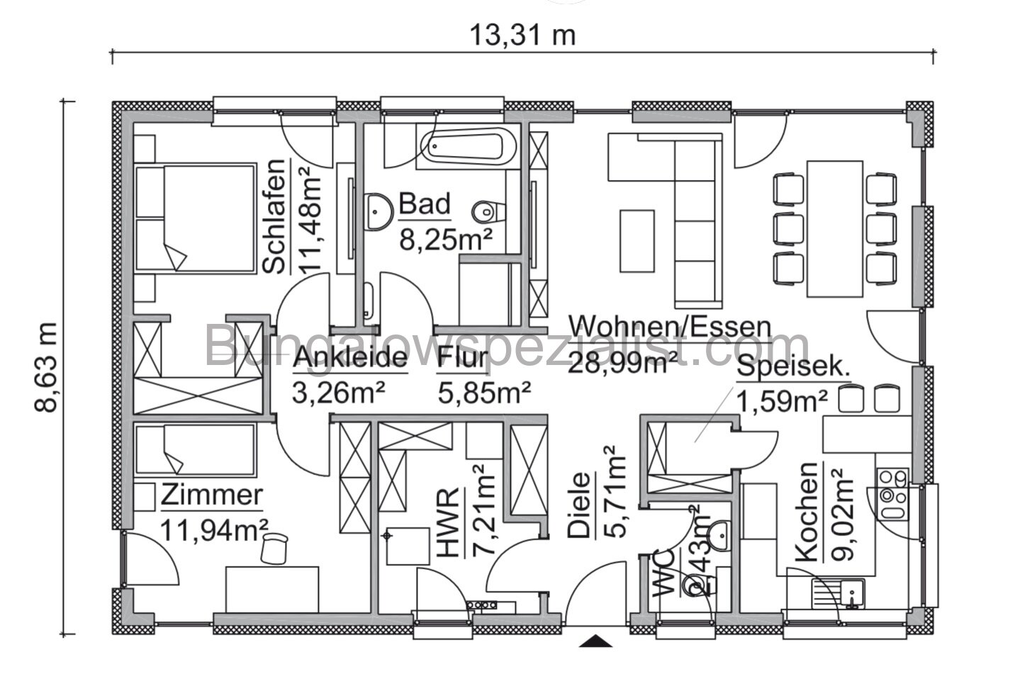
Grundriss

Grundriss

Einrichtungsbeispiel

Einrichtungsbeispiel

Einrichtungsbeispiel

Einrichtungsbeispiel

Einrichtungsbeispiel

Einrichtungsbeispiel

Ansicht
Einrichtungsbeispiel
Grundriss
Einrichtungsbeispiel
Einrichtungsbeispiel
Einrichtungsbeispiel

Preis:
448.293 €

Wohnfläche ca.:
134 m²

Grundstück ca.:
719 m²

Zimmeranzahl:
3

Objektbeschreibung

Dieser 134 Quadratmeter große Bungalow verfügt über einen 42 Quadratmeter großen, lichtdurchfluteten Wohn- und Essbereich mit einer direkt angrenzenden Küche. Die bodentiefen Terrassentüren sorgen dafür, dass dieser Bereich wunderbar lichtdurchflutet ist und bieten einen direkten Zugang in den Garten oder auf die Terrasse.
Der private Bereich des Hauses besteht aus einem Elternschlafzimmer mit einer direkt angrenzenden Ankleide, dund einem direkten Zugang zum Badezimmer. Zusätzlich gibt es ein weiteres Zimmer, das sich perfekt als Gästezimmer oder Home-Office eignet, sowie einen praktischen Hauswirtschaftsraum und ein Gäste-WC.
Der Bungalow ist barrierearm, seniorengerecht und dank Photovoltaikanlage, Wärmepumpe und Fußbodenheizung besonders energieeffizient. So bietet dieser Bungalow für viele Lebenssituationen genau das Richtige, egal ob für junge Familien oder für ein komfortables Wohnen im Alter.

Weitere Informationen

Haustyp: Bungalow


Etagenanzahl: 1


Provisionspflichtig: nein


Nutzfläche ca.: 129 m²


Anzahl Schlafzimmer: 2


Anzahl Badezimmer: 1


Barrierefrei: ja


Seniorengerecht: ja


Gäste-WC: ja


Qualität der Ausstattung: gehoben


Bauphase: Haus in Planung (projektiert)


Zustand: Erstbezug


Provision

Für diesen Bungalow ist keine Käuferprovision fällig.

Anmerkung

Die von uns gemachten Informationen beruhen auf Angaben des Verkäufers bzw. der Verkäuferin. Für die Richtigkeit und Vollständigkeit der Angaben kann keine Gewähr bzw. Haftung übernommen werden. Ein Zwischenverkauf und Irrtümer sind vorbehalten. Abbildungen und Fotos können aufpreispflichtige Extras enthalten.

AGB

Wir weisen auf unsere Allgemeinen Geschäftsbedingungen hin. Durch weitere Inanspruchnahme unserer Leistungen erklären Sie die Kenntnis und Ihr Einverständnis.

Ihr Ansprechpartner

Schwentker & Krause Haus uG
Herr Thomas Krause

Im Bastaugrund21
32427 Minden
Telefon: 01717372105


Objekt-Adresse

31675 Bückeburg
Schaumburg
Niedersachsen
Zusätzliches Infomaterial

Objekt weiterempfehlen

QR-Code