..:
Der Bungalow für Singles, Paare und für Senioren 68 Qm, Schlüsself. PV- Anlage / FB / WP
Objekt-Nr.: Bu68FioGRGZ

Ansicht


Ansicht

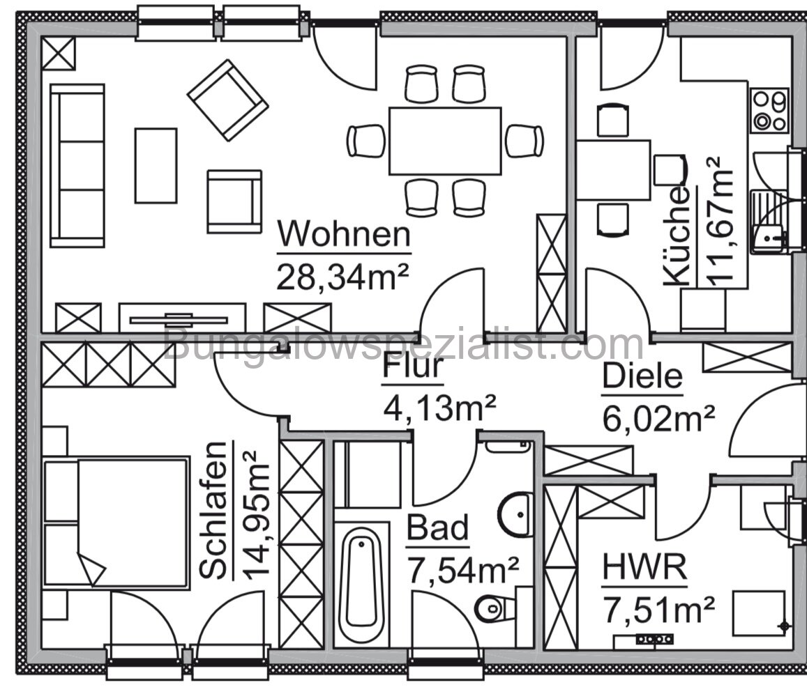
Grundriss

Einrichtungsbeispiel

Einrichtungsbeispiel

Einrichtungsbeispiel







Preis:
179.550 €
Wohnfläche ca.:
68 m²
Zimmeranzahl:
2
Dieser optimal geplante Bungalow mit 68 Quadratmetern Wohnfläche ist ideal für Singles, Paare und Senioren, da er barrierearm und seniorengerecht gestaltet ist.
Der lichtdurchflutete Wohn-Ess-Bereich mit 23 Quadratmetern wirkt dank der bodentiefen Terrassentüren besonders hell und bietet einen direkten Zugang zu einer gemütlichen Terrasse, die zum Entspannen im Freien einlädt.
Zusätzlich gibt es ein geräumiges Schlafzimmer, ein Gästezimmer, ein modernes Badezimmer und einen praktischen Hauswirtschaftsraum. Abgerundet wird das Ganze durch eine hervorragende Energieeffizienz dank Photovoltaikanlage, Wärmepumpe und Fußbodenheizung.
Haustyp: Bungalow
Etagenanzahl: 1
Provisionspflichtig: nein
Nutzfläche ca.: 68 m²
Anzahl Schlafzimmer: 2
Anzahl Badezimmer: 1
Barrierefrei: ja
Seniorengerecht: ja
Qualität der Ausstattung: gehoben
Bauphase: Haus in Planung (projektiert)
Zustand: Erstbezug
Für diesen Bungalow ist keine Käuferprovision fällig.
Die von uns gemachten Informationen beruhen auf Angaben des Verkäufers bzw. der Verkäuferin. Für die Richtigkeit und Vollständigkeit der Angaben kann keine Gewähr bzw. Haftung übernommen werden. Ein Zwischenverkauf und Irrtümer sind vorbehalten. Abbildungen und Fotos können aufpreispflichtige Extras enthalten.
Wir suchen für unsere Kunden im Maklerbüro ständig Einfamilienhäuser, Doppelhäuser, Bungalows und Grundstücke .
Nutzen Sie unseren kostenlosen Service für die Immobilienbewertung.
Schwentker Immobilien
Königstr. 132
32427 Minden
0171 7372105
Wir weisen auf unsere Allgemeinen Geschäftsbedingungen hin. Durch weitere Inanspruchnahme unserer Leistungen erklären Sie die Kenntnis und Ihr Einverständnis.
Das könnte Ihnen auch gefallen





















