..:
Seniorengerechter Winkelbungalow vom Bungalowspezialisten mit PV- Anlage / FB / WP /
Objekt-Nr.: BunWI90oGR

Ansicht


Einrichtungsbeispiel

Einrichtungsbeispiel

Einrichtungsbeispiel

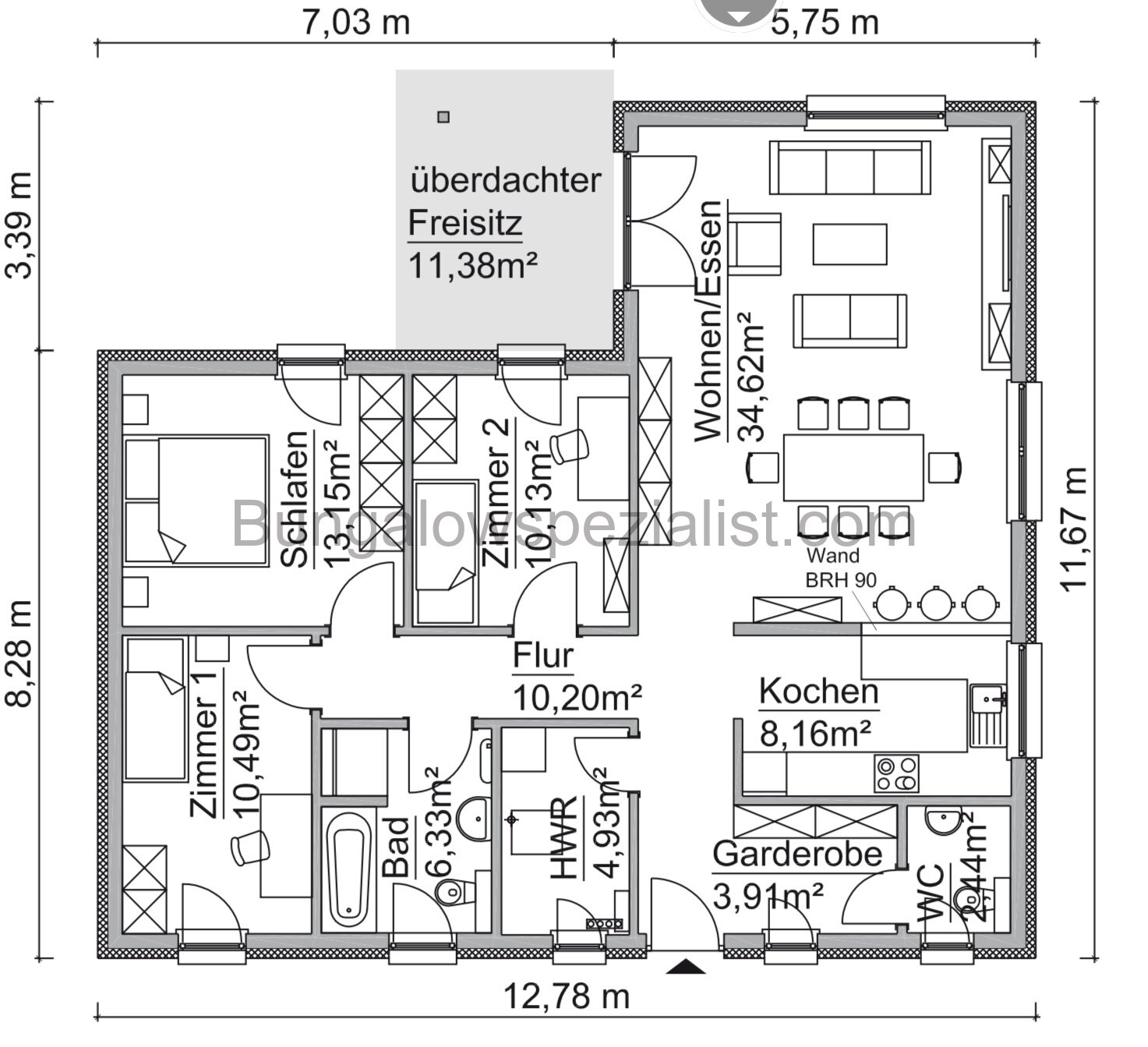
Grundriss






Preis:
230.675 €
Wohnfläche ca.:
90 m²
Zimmeranzahl:
3
Dieser schlüsselfertige, energieeffiziente Winkelbungalow mit 90 Grad Winkellage überzeugt durch seinen bodentief verglasten Erker, der den Wohnraum erweitert und für eine großzügige, lichtdurchflutete Atmosphäre sorgt. Der Wohnbereich, in dem Küche, Wohnlandschaft und Essplatz harmonisch miteinander verbunden sind, lädt zum Verweilen ein. Vom seitlichen Hauseingang gelangt man zunächst in eine Diele, in der sich ein praktischer Hauswirtschaftsraum und ein weiteres Zimmer gegenüberliegen. Von dort aus führt der eigentliche Flur weiter zu dem gemütlichen Schlafzimmer, dem modernen Bad und dem einladenden Wohnbereich. Abgerundet wird dieses durchdachte Zuhause durch eine Photovoltaikanlage, die für zusätzliche Energieeffizienz sorgt.
Haustyp: Bungalow
Etagenanzahl: 1
Provisionspflichtig: nein
Nutzfläche ca.: 90 m²
Anzahl Schlafzimmer: 2
Anzahl Badezimmer: 1
Barrierefrei: ja
Seniorengerecht: ja
Qualität der Ausstattung: gehoben
Bauphase: Haus in Planung (projektiert)
Zustand: Erstbezug
Für den Bungalow ist keine Käuferprovision fälllig.
Die von uns gemachten Informationen beruhen auf Angaben des Verkäufers bzw. der Verkäuferin. Für die Richtigkeit und Vollständigkeit der Angaben kann keine Gewähr bzw. Haftung übernommen werden. Ein Zwischenverkauf und Irrtümer sind vorbehalten. Abbildungen und Fotos können aufpreispflichtige Extras enthalten.
Wir suchen für unsere Kunden im Maklerbüro ständig Einfamilienhäuser, Doppelhäuser, Bungalows und Grundstücke .
Nutzen Sie unseren kostenlosen Service für die Immobilienbewertung.
Schwentker Immobilien
Königstr. 132
32427 Minden
0171 7372105
Wir weisen auf unsere Allgemeinen Geschäftsbedingungen hin. Durch weitere Inanspruchnahme unserer Leistungen erklären Sie die Kenntnis und Ihr Einverständnis.
Das könnte Ihnen auch gefallen
0000 ..






